Aller à :

  • Aller à la recherche
  • Aller au menu principal
  • Aller au contenu
0
  • VENTE
    • Claire C' Paris
    • Claire C' Le Sud
  • LOCATION
    • Claire C' Paris
    • Claire C' Le Sud
  • Estimation
  • Claire C’ Commerce
    • Ventes Immobilier professionnel
    • Locations Immobilier professionnel
  • CLAIRE C'AGENCES
    • Equipe de Claire C'
    • La charte de Claire C'
  • VOTRE PROJET
  • Contact
  • Newsletters
0
VotreRecherche
Dans un rayon de
Budget
entre et €
Min €
Max €
  1. Agences immobilières Paris 4 et Aix-en-Provence
  2. Vente
  3. Paris
  4. Paris
  5. Paris 2eme arrondissement
  6. Duplex
  7. T3
  8. Duplex loft espace atypique

Duplex Loft - Espace Atypique Paris (75002)

1 270 000 €
Réf : Dussoubs

Présentation

Paris 2e - Rue Dussoubs -

Claire C’immobilier vous présente en exclusivité ce magnifique appartement atypique en duplex, situé aux 4ᵉ et 5ᵉ (dernier) étages sans ascenseur d’un immeuble ancien.

Au 4ᵉ étage, vous découvrirez une entrée donnant accès à l'espace nuit une spacieuse chambre de 17 m², baignée de lumière grâce à ses deux belles fenêtres, avec dressing attenant, une très belle hauteur sous plafond, une salle de bains avec fenêtre sur cour et un WC séparé..

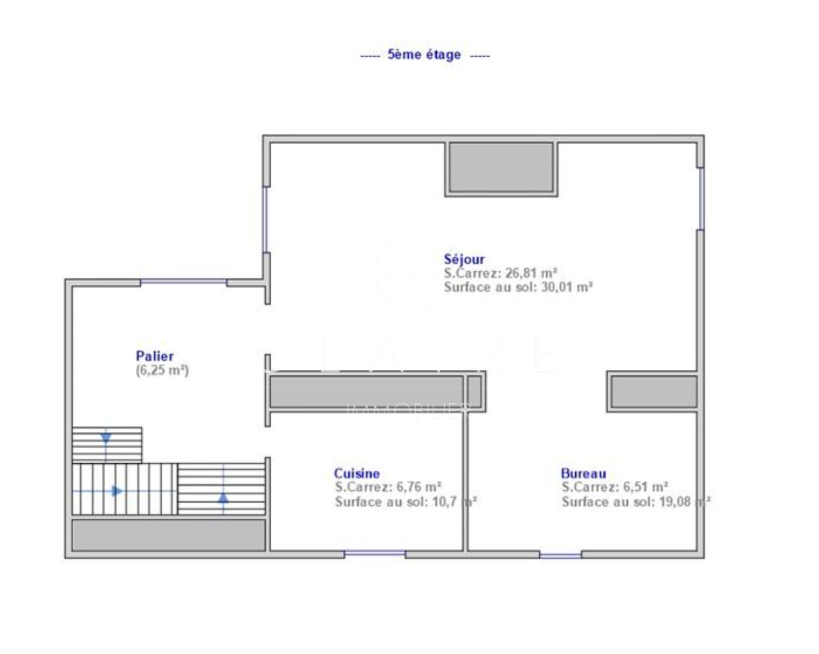
À l’étage supérieur, accessible par un escalier intérieur, les volumes se déploient : un espace boudoir, un magnifique salon salle à manger de 30m2, cathédrale baigné de lumière zénithale et ouvert par de nombreuses fenêtres, une pièce bureau ou chambre d’appoint, ainsi qu’une cuisine semi-ouverte indépendante.

Le charme de l’ancien, les volumes spectaculaires et la luminosité confèrent à ce bien un caractère rare.

D’une surface de 79,20 m² loi Carrez (99 m² au sol), cet appartement séduira les amateurs d’espaces atypiques et de lumière.

Les infos
essentielles

Caractérisque Valeurs
Code postal 75002
Surface habitable (m²) 79,20 m²
Surface loi Carrez (m²) 79,20 m²
Nombre de chambre(s) 2
Nombre de pièces 3
Etage 5
Nombre de niveaux 2
Ascenseur NON
Vue Rue et cours

Les + du bien

Détails +

Caractérisque Valeurs
Nb de salle d'eau 1
Cuisine Séparée
Type de cuisine SEMI-EQUIPEE
Balcon NON
Terrasse NON
Murs mitoyens 2
Cave OUI
Exposition Nord-Est
Année de construction 1880
Quartier Montorgeuil

Financier

Caractérisque Valeurs
Prix de vente 1 270 000 €
Les honoraires d'agence seront intégralement à la charge du vendeur  
Charges 343 €

DPE

DPE GES

Copropriété

Caractérisque Valeurs
Copropriété OUI
Lot n° 6/19/21/22/232
nombre de lots 23
Quote Part annuelle des charges 4 120 €

Quartier

  • Commerces et santé
  • Loisirs
  • Ecoles
  • Transports
  • Pratique
Cette offre vous intéresse
Chaumuzeau Claire Négociatrice
07 60 98 70 00
E-mail claire@clairecimmobilier.com

* champs obligatoires

Les informations recueillies sur ce formulaire sont enregistrées dans un fichier informatisé par La Boite Immo agissant comme Sous-traitant du traitement pour la gestion de la clientèle/prospects de l'Agence / du Réseau qui reste Responsable du Traitement de vos Données personnelles. La base légale du traitement repose sur l'intérêt légitime de l'Agence / du Réseau. Elles sont conservées jusqu'à demande de suppression et sont destinées à l'Agence / au Réseau. Conformément à la loi « informatique et libertés », vous disposez des droits d’accès, de rectification, d’effacement, d’opposition, de limitation et de portabilité de vos données. Vous pouvez retirer votre consentement à tout moment en contactant directement l’Agence / Le Réseau. Consultez le site https://cnil.fr/fr pour plus d’informations sur vos droits. Si vous estimez, après avoir contacté l'Agence / le Réseau, que vos droits « Informatique et Libertés » ne sont pas respectés, vous pouvez adresser une réclamation à la CNIL. Nous vous informons de l’existence de la liste d'opposition au démarchage téléphonique « Bloctel », sur laquelle vous pouvez vous inscrire ici : https://www.bloctel.gouv.fr Dans le cadre de la protection des Données personnelles, nous vous invitons à ne pas inscrire de Données sensibles dans le champ de saisie libre.
Ce site est protégé par reCAPTCHA, les Politiques de Confidentialité et les Conditions d'Utilisation de Google s'appliquent.

Nos outils
Imprimer Imprimer
Partager le bien
Calculatrice financière

* Champ obligatoire

Partager l'annonce

* champs obligatoires

Les informations recueillies sur ce formulaire sont enregistrées dans un fichier informatisé par La Boite Immo agissant comme Sous-traitant du traitement pour la gestion de la clientèle/prospects de l'Agence / du Réseau qui reste Responsable du Traitement de vos Données personnelles. La base légale du traitement repose sur l'intérêt légitime de l'Agence / du Réseau. Elles sont conservées jusqu'à demande de suppression et sont destinées à l'Agence / au Réseau. Conformément à la loi « informatique et libertés », vous disposez des droits d’accès, de rectification, d’effacement, d’opposition, de limitation et de portabilité de vos données. Vous pouvez retirer votre consentement à tout moment en contactant directement l’Agence / Le Réseau. Consultez le site https://cnil.fr/fr pour plus d’informations sur vos droits. Si vous estimez, après avoir contacté l'Agence / le Réseau, que vos droits « Informatique et Libertés » ne sont pas respectés, vous pouvez adresser une réclamation à la CNIL. Nous vous informons de l’existence de la liste d'opposition au démarchage téléphonique « Bloctel », sur laquelle vous pouvez vous inscrire ici : https://www.bloctel.gouv.fr Dans le cadre de la protection des Données personnelles, nous vous invitons à ne pas inscrire de Données sensibles dans le champ de saisie libre.
Ce site est protégé par reCAPTCHA, les Politiques de Confidentialité et les Conditions d'Utilisation de Google s'appliquent.

Partager avec vos proches

Facebook Facebook
Messenger Messenger
Twitter Twitter
WhatsApp WhatsApp
LinkedIn LinkedIn
Copier le lien Copier le lien
Détail des diagnostics énergétiques
DPE GES

Logement à consommation énergétique excessive : classe G

Montant estimé des dépenses annuelles d'énergie pour un usage standard est compris entre 2 930 € et 4 010 € . Prix moyens des énergies indexés sur les années 2021, 2022 et 2023 (abonnements compris).

Autres biens

Ces biens peuvent aussi vous intéresser

Appartement

Appartement 3/4 pièces, beau classique.

Paris (75009)
Voir le bien
Appartement

Claire C' - Appartement 3 pièces en duplex avec vue dégagée plein Sud.

Paris (75003)
Nouveauté
Voir le bien
Se connecter
Espace propriétaire
Page d'accueil

© 2026 | Tous droits réservés | Traduction powered by Google |

  • Nos honoraires
  • Plan du site
  • Mentions légales
  • Admin
  • Nos partenaires
  • Politique RGPD

Comme beaucoup, notre site utilise les cookies

On aimerait vous accompagner pendant votre visite. En poursuivant, vous acceptez l'utilisation des cookies par ce site, afin de vous proposer des contenus adaptés et réaliser des statistiques !

Paramétrer

Cookies fonctionnelsCes cookies sont indispensables à la navigation sur le site, pour vous garantir un fonctionnement optimal. Ils ne peuvent donc pas être désactivés.

Statistiques de visitesPour améliorer votre expérience, on a besoin de savoir ce qui vous intéresse !
Les données récoltées sont anonymisées.

?

Google Analytics

En savoir plus