Aller à :

  • Aller à la recherche
  • Aller au menu principal
  • Aller au contenu
0
  • VENTE
    • Claire C' Paris
    • Claire C' Le Sud
  • LOCATION
    • Claire C' Paris
    • Claire C' Le Sud
  • Estimation
  • Claire C’ Commerce
    • Ventes Immobilier professionnel
    • Locations Immobilier professionnel
  • CLAIRE C'AGENCES
    • Equipe de Claire C'
    • La charte de Claire C'
  • VOTRE PROJET
  • Contact
  • Newsletters
0
VotreRecherche
Dans un rayon de
Budget
entre et €
Min €
Max €
  1. Agences immobilières Paris 4 et Aix-en-Provence
  2. Vente
  3. Paris
  4. Paris
  5. Paris 12eme arrondissement
  6. Appartement
  7. T2
  8. Claire c exclusivite studio ou 2 pieces

CLAIRE C'- EXCLUSIVITÉ Studio ou 2 pièces Paris (75012)

435 000 €
Réf : 545C

Présentation

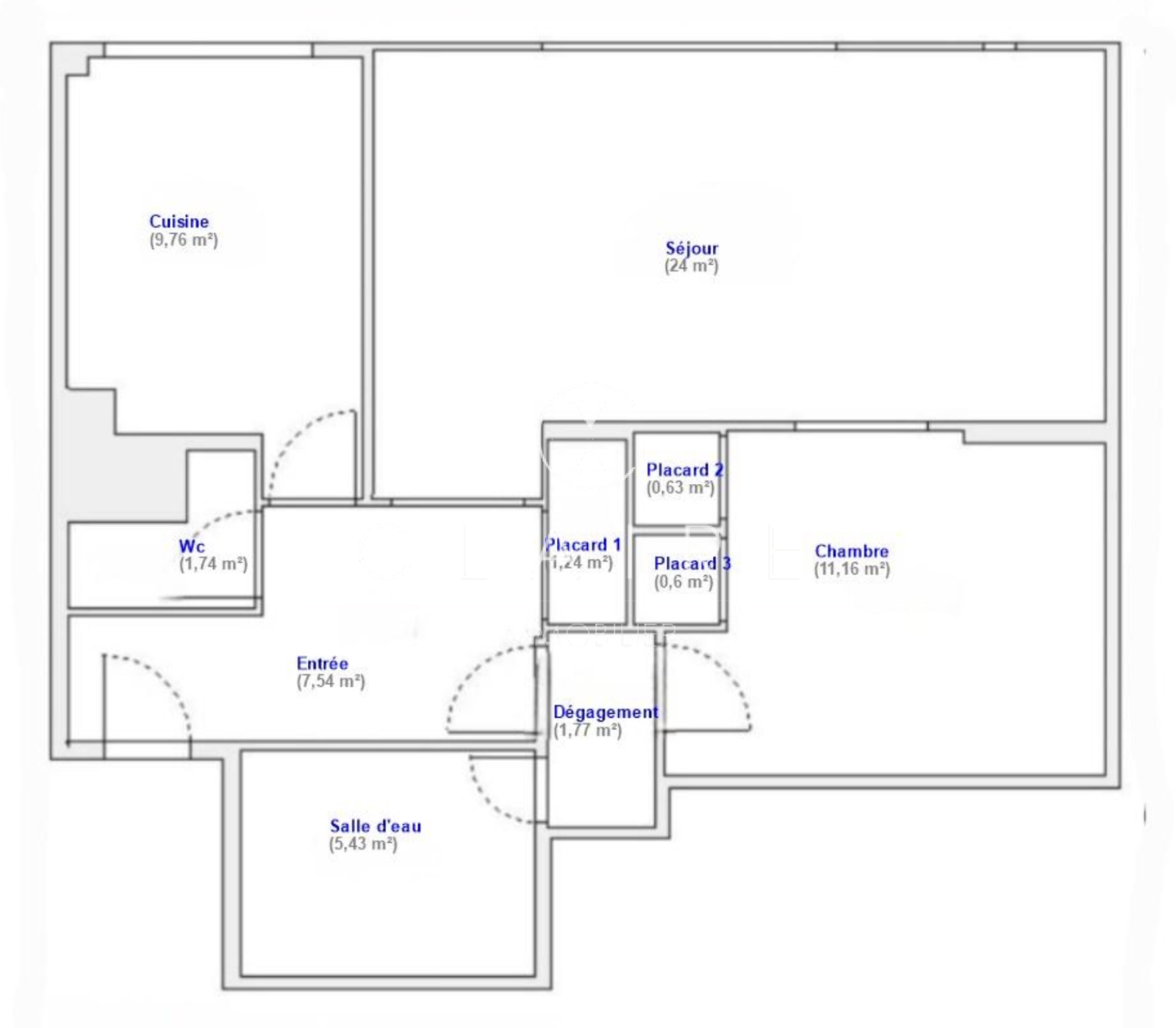
Paris 12e – Rue de Charenton - Métro Daumesnil. Claire C’Immobilier vous propose, dans un immeuble récent de 1970 avec gardien, un appartement de 2 pièces de 63,87 m², situé au 1er étage avec ascenseur.

Ce bien se compose d’une vaste entrée avec rangements, ouvrant sur un séjour lumineux, exposé sud-ouest, agrémenté de grandes baies vitrées. La cuisine séparée, entièrement aménagée et équipée, offre de belles possibilités d’aménagement.
La chambre (en second jour) est accompagnée d’une salle d’eau récemment rénovée, et des toilettes indépendantes complètent ce bien.

Aménagement modulable : possibilité de repenser l’espace en créant une cuisine américaine ouverte sur le séjour et en transformant la cuisine actuelle en chambre indépendante avec une grande fenêtre.

Un appartement calme et baigné de lumière, situé dans un quartier dynamique, bien desservi par les transports. Idéal pour un premier achat ou un très bon bien d'investissment. Une cave en sous-sol complète ce bien.

Possibilité de louer ou d’acquérir un parking ou un box dans l’immeuble.

Visuels non contractuels – Home staging virtuel réalisé à titre indicatif grâce à l’IA

Le bien en vidéo

SpotVideo

Les infos
essentielles

Caractérisque Valeurs
Code postal 75012
Surface habitable (m²) 64 m²
Surface loi Carrez (m²) 64 m²
Nombre de chambre(s) 1
Nombre de pièces 2
Etage 1
Nombre de niveaux 1
Ascenseur OUI
Vue Sur rue

Les + du bien

Détails +

Caractérisque Valeurs
Nb de salle d'eau 1
Cuisine Séparée
Type de cuisine Equipée
Mode de chauffage Gaz
Type de chauffage Radiateur
Format de chauffage Collectif
Interphone OUI
Balcon NON
Terrasse NON
Murs mitoyens 4
Cave OUI
Surface cave (m²) 2
Exposition Sud-Ouest
Année de construction 1970

Financier

Caractérisque Valeurs
Prix de vente 435 000 €
Les honoraires d'agence seront intégralement à la charge du vendeur  
Charges 200 €
Taxe foncière annuelle 1 338 €

DPE

DPE GES

Copropriété

Caractérisque Valeurs
Copropriété OUI
Lot n° 200;124
nombre de lots 153
Quote Part annuelle des charges 2 165 €
plan de sauvegarde NON
statut du syndic pas de procédure en cours

Quartier

  • Commerces et santé
  • Loisirs
  • Ecoles
  • Transports
  • Pratique
Cette offre vous intéresse
Chaumuzeau Claire Négociatrice
07 60 98 70 00
E-mail claire@clairecimmobilier.com

* champs obligatoires

Les informations recueillies sur ce formulaire sont enregistrées dans un fichier informatisé par La Boite Immo agissant comme Sous-traitant du traitement pour la gestion de la clientèle/prospects de l'Agence / du Réseau qui reste Responsable du Traitement de vos Données personnelles. La base légale du traitement repose sur l'intérêt légitime de l'Agence / du Réseau. Elles sont conservées jusqu'à demande de suppression et sont destinées à l'Agence / au Réseau. Conformément à la loi « informatique et libertés », vous disposez des droits d’accès, de rectification, d’effacement, d’opposition, de limitation et de portabilité de vos données. Vous pouvez retirer votre consentement à tout moment en contactant directement l’Agence / Le Réseau. Consultez le site https://cnil.fr/fr pour plus d’informations sur vos droits. Si vous estimez, après avoir contacté l'Agence / le Réseau, que vos droits « Informatique et Libertés » ne sont pas respectés, vous pouvez adresser une réclamation à la CNIL. Nous vous informons de l’existence de la liste d'opposition au démarchage téléphonique « Bloctel », sur laquelle vous pouvez vous inscrire ici : https://www.bloctel.gouv.fr Dans le cadre de la protection des Données personnelles, nous vous invitons à ne pas inscrire de Données sensibles dans le champ de saisie libre.
Ce site est protégé par reCAPTCHA, les Politiques de Confidentialité et les Conditions d'Utilisation de Google s'appliquent.

Nos outils
Imprimer Imprimer
Partager le bien
Calculatrice financière

* Champ obligatoire

Partager l'annonce

* champs obligatoires

Les informations recueillies sur ce formulaire sont enregistrées dans un fichier informatisé par La Boite Immo agissant comme Sous-traitant du traitement pour la gestion de la clientèle/prospects de l'Agence / du Réseau qui reste Responsable du Traitement de vos Données personnelles. La base légale du traitement repose sur l'intérêt légitime de l'Agence / du Réseau. Elles sont conservées jusqu'à demande de suppression et sont destinées à l'Agence / au Réseau. Conformément à la loi « informatique et libertés », vous disposez des droits d’accès, de rectification, d’effacement, d’opposition, de limitation et de portabilité de vos données. Vous pouvez retirer votre consentement à tout moment en contactant directement l’Agence / Le Réseau. Consultez le site https://cnil.fr/fr pour plus d’informations sur vos droits. Si vous estimez, après avoir contacté l'Agence / le Réseau, que vos droits « Informatique et Libertés » ne sont pas respectés, vous pouvez adresser une réclamation à la CNIL. Nous vous informons de l’existence de la liste d'opposition au démarchage téléphonique « Bloctel », sur laquelle vous pouvez vous inscrire ici : https://www.bloctel.gouv.fr Dans le cadre de la protection des Données personnelles, nous vous invitons à ne pas inscrire de Données sensibles dans le champ de saisie libre.
Ce site est protégé par reCAPTCHA, les Politiques de Confidentialité et les Conditions d'Utilisation de Google s'appliquent.

Partager avec vos proches

Facebook Facebook
Messenger Messenger
Twitter Twitter
WhatsApp WhatsApp
LinkedIn LinkedIn
Copier le lien Copier le lien
Détail des diagnostics énergétiques
DPE GES

Montant estimé des dépenses annuelles d'énergie pour un usage standard est compris entre 1 290 € et 1 800 € . Prix moyens des énergies indexés sur les années 2021, 2022 et 2023 (abonnements compris).

Autres biens

Ces biens peuvent aussi vous intéresser

Appartement

Magnifique 2 pièces avec une vue dégagée sur la Place.

Paris (75005)
Voir le bien
Appartement

Claire C' - Grand studio ou 2 pièces. VENDU MERCI PASCAL ET EMMA

Paris (75004)
Nouveauté
Voir le bien
Se connecter
Espace propriétaire
Page d'accueil

© 2026 | Tous droits réservés | Traduction powered by Google |

  • Nos honoraires
  • Plan du site
  • Mentions légales
  • Admin
  • Nos partenaires
  • Politique RGPD

Comme beaucoup, notre site utilise les cookies

On aimerait vous accompagner pendant votre visite. En poursuivant, vous acceptez l'utilisation des cookies par ce site, afin de vous proposer des contenus adaptés et réaliser des statistiques !

Paramétrer

Cookies fonctionnelsCes cookies sont indispensables à la navigation sur le site, pour vous garantir un fonctionnement optimal. Ils ne peuvent donc pas être désactivés.

Statistiques de visitesPour améliorer votre expérience, on a besoin de savoir ce qui vous intéresse !
Les données récoltées sont anonymisées.

?

Google Analytics

En savoir plus