Aller à :

  • Aller à la recherche
  • Aller au menu principal
  • Aller au contenu
0
  • VENTE
    • Claire C' Paris
    • Claire C' Le Sud
  • LOCATION
    • Claire C' Paris
    • Claire C' Le Sud
  • Estimation
  • Claire C’ Commerce
    • Ventes Immobilier professionnel
    • Locations Immobilier professionnel
  • CLAIRE C'AGENCES
    • Equipe de Claire C'
    • La charte de Claire C'
  • VOTRE PROJET
  • Contact
  • Newsletters
0
VotreRecherche
Dans un rayon de
Budget
entre et €
Min €
Max €
  1. Agences immobilières Paris 4 et Aix-en-Provence
  2. Vente
  3. Paris
  4. Paris
  5. Paris 11eme arrondissement
  6. Appartement
  7. T2
  8. Paris 11e face marais studio atypique en duplex

Paris 11e - Face Marais - Studio Atypique en duplex. Paris (75011)

160 000 €
Réf : 586A

Présentation

Paris 11e - Boulevard du Temple.

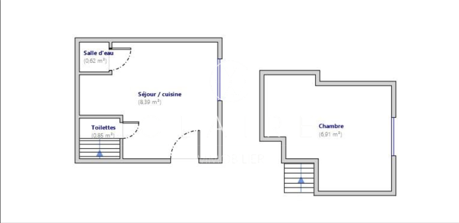
Face au Marais, à deux pas de Place de la République, Claire C’immobilier vous propose en exclusivité ce charmant studio en duplex, niché aux 6ᵉ et 7ᵉ étages sans ascenseur d’un immeuble ancien.

Comme un petit cocon sous les toits, ce ravissant deux-pièces en duplex offre une pièce de vie parfaitement optimisée ainsi qu’une chambre cosy sous les combles.

Au calme absolu sur cour, il dégage une atmosphère chaleureuse et intimiste, idéale pour se ressourcer en plein cœur de la ville.

D’une surface de 10,44 m² loi Carrez pondéré à 13m2 pour 16,77 m² au sol il constitue un pied-à-terre parisien idéal, un premier achat ou un investissement patrimonial.

DPE F : 605 kwh/23 GES -

Location possible Bail residence secondaire entre 700€ et 800€/mois.Rendement locatif Entre 4,8 % et 5,5 % brut

Les infos
essentielles

Caractérisque Valeurs
Code postal 75011
Surface habitable (m²) 16,77 m²
Surface loi Carrez (m²) 10,44 m²
Nombre de chambre(s) 1
Nombre de pièces 2
Etage 6
Ascenseur NON
Vue Dégagée et cour

Les + du bien

Détails +

Caractérisque Valeurs
Nb de salle d'eau 1
Cuisine Kitchenette
Type de cuisine Equipée
Mode de chauffage Electrique
Type de chauffage Convecteur
Format de chauffage Individuel
Balcon NON
Cave NON
Exposition Nord-Est
Année de construction 1900

Financier

Caractérisque Valeurs
Prix de vente 160 000 €
Les honoraires d'agence seront intégralement à la charge du vendeur  
Charges 30 €

DPE

DPE GES

Copropriété

Caractérisque Valeurs
Copropriété OUI
Lot n° 116
nombre de lots 23
Quote Part annuelle des charges 360 €
statut du syndic pas de procédure en cours

Quartier

  • Commerces et santé
  • Loisirs
  • Ecoles
  • Transports
  • Pratique
Cette offre vous intéresse
Chaumuzeau Claire Négociatrice
07 60 98 70 00
E-mail claire@clairecimmobilier.com

* champs obligatoires

Les informations recueillies sur ce formulaire sont enregistrées dans un fichier informatisé par La Boite Immo agissant comme Sous-traitant du traitement pour la gestion de la clientèle/prospects de l'Agence / du Réseau qui reste Responsable du Traitement de vos Données personnelles. La base légale du traitement repose sur l'intérêt légitime de l'Agence / du Réseau. Elles sont conservées jusqu'à demande de suppression et sont destinées à l'Agence / au Réseau. Conformément à la loi « informatique et libertés », vous disposez des droits d’accès, de rectification, d’effacement, d’opposition, de limitation et de portabilité de vos données. Vous pouvez retirer votre consentement à tout moment en contactant directement l’Agence / Le Réseau. Consultez le site https://cnil.fr/fr pour plus d’informations sur vos droits. Si vous estimez, après avoir contacté l'Agence / le Réseau, que vos droits « Informatique et Libertés » ne sont pas respectés, vous pouvez adresser une réclamation à la CNIL. Nous vous informons de l’existence de la liste d'opposition au démarchage téléphonique « Bloctel », sur laquelle vous pouvez vous inscrire ici : https://www.bloctel.gouv.fr Dans le cadre de la protection des Données personnelles, nous vous invitons à ne pas inscrire de Données sensibles dans le champ de saisie libre.
Ce site est protégé par reCAPTCHA, les Politiques de Confidentialité et les Conditions d'Utilisation de Google s'appliquent.

Nos outils
Imprimer Imprimer
Partager le bien
Calculatrice financière

* Champ obligatoire

Partager l'annonce

* champs obligatoires

Les informations recueillies sur ce formulaire sont enregistrées dans un fichier informatisé par La Boite Immo agissant comme Sous-traitant du traitement pour la gestion de la clientèle/prospects de l'Agence / du Réseau qui reste Responsable du Traitement de vos Données personnelles. La base légale du traitement repose sur l'intérêt légitime de l'Agence / du Réseau. Elles sont conservées jusqu'à demande de suppression et sont destinées à l'Agence / au Réseau. Conformément à la loi « informatique et libertés », vous disposez des droits d’accès, de rectification, d’effacement, d’opposition, de limitation et de portabilité de vos données. Vous pouvez retirer votre consentement à tout moment en contactant directement l’Agence / Le Réseau. Consultez le site https://cnil.fr/fr pour plus d’informations sur vos droits. Si vous estimez, après avoir contacté l'Agence / le Réseau, que vos droits « Informatique et Libertés » ne sont pas respectés, vous pouvez adresser une réclamation à la CNIL. Nous vous informons de l’existence de la liste d'opposition au démarchage téléphonique « Bloctel », sur laquelle vous pouvez vous inscrire ici : https://www.bloctel.gouv.fr Dans le cadre de la protection des Données personnelles, nous vous invitons à ne pas inscrire de Données sensibles dans le champ de saisie libre.
Ce site est protégé par reCAPTCHA, les Politiques de Confidentialité et les Conditions d'Utilisation de Google s'appliquent.

Partager avec vos proches

Facebook Facebook
Messenger Messenger
Twitter Twitter
WhatsApp WhatsApp
LinkedIn LinkedIn
Copier le lien Copier le lien
Détail des diagnostics énergétiques
DPE GES

Logement à consommation énergétique excessive : classe G

Montant estimé des dépenses annuelles d'énergie pour un usage standard est compris entre 660 € et 920 € . Prix moyens des énergies indexés sur les années 2021, 2022 et 2023 (abonnements compris).

Autres biens

Ces biens peuvent aussi vous intéresser

Appartement

CLAIRE C' - STUDIO À VENDRE - MARAIS

Paris (75004)
Voir le bien
Studio

Claire C' - Charmant studio VENDU MERCI YVES ET CAROLINE

Paris (75020)
Voir le bien
Se connecter
Espace propriétaire
Page d'accueil

© 2026 | Tous droits réservés | Traduction powered by Google |

  • Nos honoraires
  • Plan du site
  • Mentions légales
  • Admin
  • Nos partenaires
  • Politique RGPD

Comme beaucoup, notre site utilise les cookies

On aimerait vous accompagner pendant votre visite. En poursuivant, vous acceptez l'utilisation des cookies par ce site, afin de vous proposer des contenus adaptés et réaliser des statistiques !

Paramétrer

Cookies fonctionnelsCes cookies sont indispensables à la navigation sur le site, pour vous garantir un fonctionnement optimal. Ils ne peuvent donc pas être désactivés.

Statistiques de visitesPour améliorer votre expérience, on a besoin de savoir ce qui vous intéresse !
Les données récoltées sont anonymisées.

?

Google Analytics

En savoir plus